Property Features
Sulby Close, Spalding, PE11 3QS
Contact Agent
Spalding Office43, Double Street
Spalding
Lincolnshire
PE11 2AA
Tel: 01775 713 888
enquiries@sedge-homes.com
About the Property
A well-presented three-storey detached home built in 2019, offering three double bedrooms, a modern kitchen/diner with integrated appliances, and a spacious principal suite with dressing area and en suite. With a garage, driveway, and private rear garden that is not overlooked, this property provides comfortable and flexible living space in good condition, ideal for families or buyers looking for a modern home with room to make it their own.
- Three storey detached home built in 2019
- Three double bedrooms across two upper floors
- Principal bedroom with dressing area and en suite
- Spacious lounge with front aspect window
- Modern kitchen/diner with integrated appliances
- Ground floor WC for convenience
- Family bathroom on the first floor
- Single garage with driveway parking
- Front and rear gardens, rear not overlooked
- EPC rating B, Freehold tenure
Property Details
Summary
Spacious Three Storey Detached Home | 3 Double Bedrooms | Garage & Gardens | EPC Rating B
Tenure: Freehold
This well-presented three-storey detached home, built in 2019, offers generous living space, modern fittings, and flexible accommodation ideal for families. The property is in good condition throughout and has been thoughtfully improved by the current owners, making it ready to move into while still offering scope for personalisation.
Ground Floor
The property opens into a welcoming entrance hall with an under-stairs storage cupboard and access to a convenient ground floor WC. To the front is a bright and comfortable lounge, a great space for relaxing with family. To the rear sits the open-plan kitchen/diner, fitted with a range of modern units and integrated appliances including a fridge/freezer, dishwasher, double oven, and washing machine. French doors open out to the garden, providing a pleasant flow between inside and outside living.
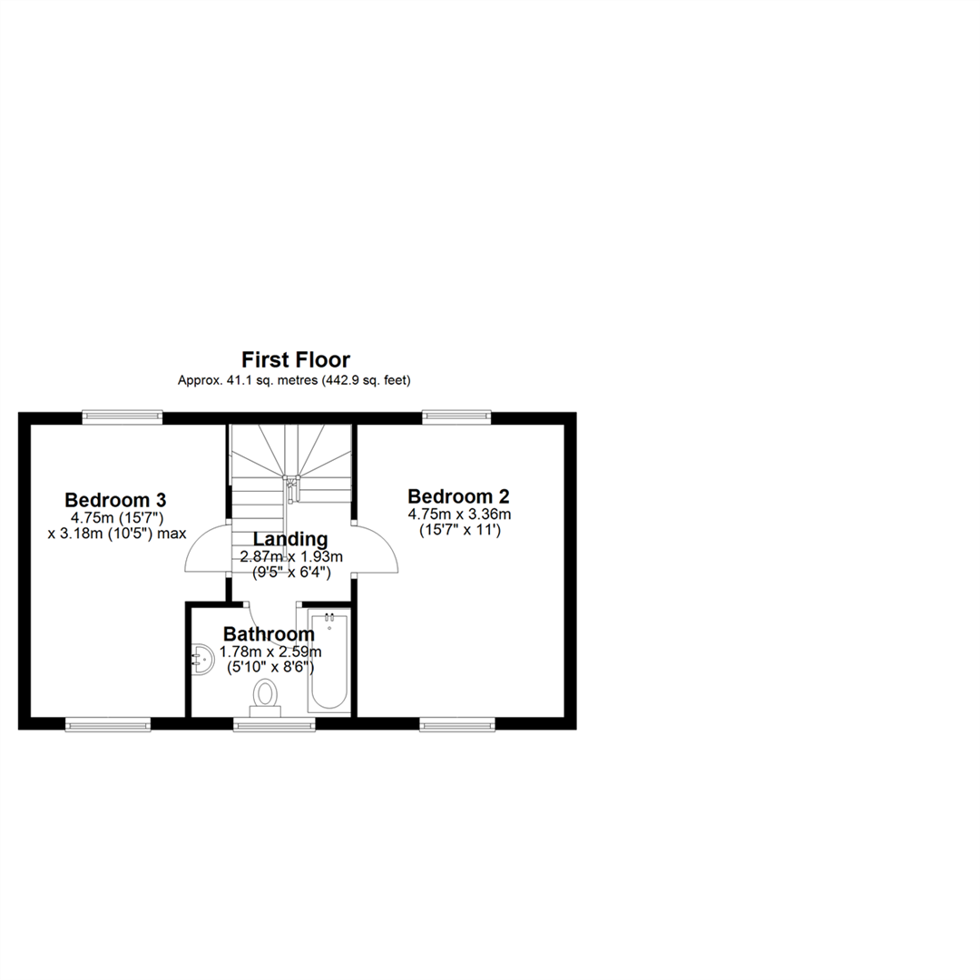
First Floor
The first floor offers two generously sized double bedrooms, both with windows to the front and rear creating plenty of natural light. A family bathroom with modern suite completes this level.
Second Floor
The top floor is dedicated to the principal bedroom, offering a spacious layout with dual-aspect windows. This suite also includes a dressing area with built-in storage and access to an en suite shower room.
Outside
The property enjoys a front garden with pathway to the entrance and a driveway providing off-road parking and access to the single garage. The rear garden is laid mainly to lawn with patio and paved pathways. Importantly, it benefits from not being overlooked, providing a good level of privacy.
Room Measurements:
Ground Floor
Lounge: 4.75m x 3.25m
Kitchen/Diner: 6.73m x 3.07m
WC: 1.75m x 0.97m
Garage: 5.49m x 2.72m
First Floor
Bedroom 2: 4.75m x 3.36m
Bedroom 3: 4.75m x 3.18m
Bathroom: 1.78m x 2.59m
Second Floor
Bedroom 1: 4.75m x 3.18m
Dressing Area: 2.92m x 2.84m
En Suite: 1.73m x 2.84m
Summary
This is a modern, well-designed family home offering flexible three-storey accommodation, three double bedrooms, and a private garden. Built just a few years ago, it provides modern conveniences while leaving room for a new owner to add their own finishing touches. With its garage, parking, and good location, it represents an excellent opportunity for buyers looking for a spacious home in a popular residential setting.
These particulars are intended to give a fair and accurate description of the property to the best of the agent’s knowledge at the time of marketing. They do not constitute part of an offer or contract.
Some properties may be subject to additional charges such as estate management charges, rentcharges, service charges, or other ongoing costs relating to communal areas or shared infrastructure. Prospective purchasers are advised to make their own enquiries and seek confirmation of all details, including tenure and any associated charges, via their solicitor prior to exchange of contracts.
















