Property Features
St James Road, Long Sutton, PE12 9AZ
Contact Agent
Spalding Office43, Double Street
Spalding
Lincolnshire
PE11 2AA
Tel: 01775 713 888
enquiries@sedge-homes.com
About the Property
A truly captivating Grade II Listed detached cottage of exceptional character, this former dairy sits on the outskirts of Long Sutton and showcases striking Gothic windows, beautifully proportioned rooms and charming garden views throughout. Offering 1,826 sq. ft. of flexible accommodation, the home combines period elegance with practical living, generous outbuildings and delightful cottage gardens, creating a rare and highly individual lifestyle opportunity.
Guide Price £375000 – £400000
- Grade II Listed detached character cottage
- Former dairy with striking Gothic windows
- Situated on the outskirts of Long Sutton
- 1,826 sq. ft. of flexible accommodation
- Two bedrooms and two bath/shower rooms
- Bespoke kitchen with utility and laundry
- Large landing ideal as a study area
- Charming, established cottage gardens
- Ample parking with detached double garage and workshop
- Chain Free
Property Details
Summary
A truly captivating and highly individual Grade II Listed detached cottage, this former dairy occupies a delightful position on the outskirts of Long Sutton. Rich in period character, the property showcases striking Gothic windows that create a dramatic architectural statement while drawing in natural light and framing charming views across the surrounding gardens.
The accommodation extends to approximately 1,826 sq. ft. and is arranged over two floors. Internally, the cottage delights with its thoughtful decoration, character fireplaces and a flexible layout ideal for both everyday living and entertaining. The ground floor offers three reception rooms, including a welcoming living room, an atmospheric music room and a spacious dining room, all of which celebrate the home’s heritage. A light-filled conservatory provides a tranquil garden-facing retreat, while the bespoke kitchen sits comfortably at the heart of the home and is complemented by a separate utility, laundry room and shower room, ensuring excellent practicality.
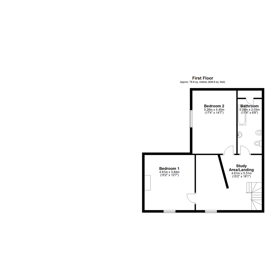
Upstairs, the first floor offers two generous bedrooms, both retaining period features, along with a substantial landing that lends itself perfectly as a study area. A well-proportioned family bathroom completes the accommodation.
Outside, the cottage is surrounded by charming, established gardens that feel wonderfully private and sheltered — a delightful setting in which to relax, wander and unwind. The property benefits from ample parking together with a detached double garage, incorporating a workshop and additional storage, ideal for hobbies or future potential.
This exceptional character home presents a rare opportunity to enjoy period living in a picturesque rural setting, where all that is needed is to move in, enjoy, and unwind.
Accommodation
Ground Floor
Living Room: 4.61m x 4.19m
Music Room: 4.27m x 5.51m
Dining Room: 5.28m x 3.81m
Kitchen: 2.72m x 3.81m
Utility: 1.55m x 1.60m
Laundry Room: 2.44m x 1.60m
Shower Room: 2.75m x 1.60m
Conservatory: 2.72m x 2.26m
First Floor
Bedroom One: 4.61m x 3.84m
Bedroom Two: 5.28m x 4.45m
Study Area / Landing: 4.61m x 5.51m
Bathroom: 5.28m x 2.03m
Outbuildings
Detached Double Garage: 5.69m x 5.51m
Workshop: 2.84m x 3.15m
Storage: 2.75m x 3.15m
These particulars are intended to give a fair and accurate description of the property to the best of the agent’s knowledge at the time of marketing. They do not constitute part of an offer or contract.
Some properties may be subject to additional charges such as estate management charges, rentcharges, service charges, or other ongoing costs relating to communal areas or shared infrastructure. Prospective purchasers are advised to make their own enquiries and seek confirmation of all details, including tenure and any associated charges, via their solicitor prior to exchange of contracts.




























