Property Features
Midville Lane, Stickney, Boston, PE22 8DW
Contact Agent
Spalding Office43, Double Street
Spalding
Lincolnshire
PE11 2AA
Tel: 01775 713 888
enquiries@sedge-homes.com
About the Property
Hydra is a substantial six-bedroom detached family home extending to nearly 3,000 sq ft, set within approximately 3.107 acres (sts) of formal gardens and paddocks in a peaceful rural position near Stickney. Freshly decorated throughout with new carpets and a modern refitted bathroom, the property offers spacious and versatile accommodation including three reception rooms, a study, kitchen with utility, en-suite principal bedroom, integral double garage, timber outbuildings, and a characterful Clearview multi-fuel stove. To the rear, a rare and valuable fully consented Class Q development provides planning permission for the conversion of three agricultural buildings into seven residential dwellings (totalling 776.9 sq m / 8,363 sq ft) with one barn approved for demolition. With established access, a Flood Risk Assessment completed, and the majority of the site within Flood Zone 1, this represents an exceptional opportunity for immediate occupation combined with significant long-term development, investment, or resale potential in an attractive Lincolnshire countryside setting.
- Substantial six-bedroom detached home (approx. 3,000 sq ft)
- Set within 3.107 acres (sts) of gardens and paddocks
- Freshly decorated with new carpets and modern bathroom
- Three reception rooms plus study – ideal for family living
- Integral double garage and timber outbuildings
- Fully consented Class Q scheme for 7 dwellings
- 776.9 sqm (8,363 sq ft) approved development floorspace
- Majority Flood Zone 1 with Flood Risk Assessment complete
- Established access from Midville Lane
- Rare opportunity combining luxury home and low-risk development potential
Property Details
Bullet Points
Fully consented Class Q scheme – planning permission secured for conversion of three agricultural buildings into 7 residential dwellings, significantly reducing planning risk.
776.9 sqm (8,363 sq ft) approved floorspace – a substantial, ready-to-deliver scheme with strong GDV potential.
Courtyard-style layout – attractive design concept ideal for premium rural homes and strong end values.
No previous Class Q development on the holding – clean planning history and clear implementation route.
Majority Flood Zone 1 location – low fluvial flood risk with Flood Risk Assessment completed.
Established vehicular access from Midville Lane – confirmed highway access with no identified safety concerns.
All units under 150 sqm – compliant with Class Q limitations and well-sized for the local market.
Structurally substantial agricultural buildings – suitable for conversion in accordance with approved plans.
Peaceful rural Lincolnshire setting with open countryside views – highly desirable lifestyle location for purchasers.
Flexible exit strategy – ideal for phased development, build-to-sell, build-to-rent, or resale of the consented site.
Summary
Summary
House: Spacious six-bedroom detached family residence with nearly 3,000 sq ft of living accommodation, freshly decorated throughout with new carpets and a modern main bathroom. Set within 3.107 acres (sts) of formal gardens and paddocks, including timber outbuildings and an integral double garage.
Development: Rare fully consented Class Q opportunity to convert three agricultural buildings into seven residential dwellings, with one barn approved for demolition. Total approved floorspace approximately 776.9 sq m (8,363 sq ft), with established access and a peaceful rural setting — ideal for phased development, investment, or resale.
The House – Hydra
Hydra is an impressive detached family home, occupying a private rural position with very few neighbouring properties and open views across surrounding agricultural land. The property has been freshly decorated throughout, benefits from new carpets and a modern refitted main bathroom, providing move-in-ready accommodation while still offering scope for personalisation.
Extending to nearly 3,000 sq ft, the accommodation is both spacious and versatile, ideal for growing families or multi-generational living. A welcoming hallway forms the heart of the home and features a Clearview multi-fuel stove, creating a warm and characterful focal point.
Ground Floor Accommodation:
Lounge: 4.85m x 5.56m – bay window to front, window to side
Dining Room: 3.33m x 5.66m – window to front, two double doors
Sitting Room: 4.11m x 4.01m – double doors
Kitchen: 3.40m x 4.37m – window to front and side
Utility Room: 2.46m x 3.40m – door to exterior
Office/Study: 3.66m x 3.33m – window to rear
Hallway: Fireplace, storage cupboard, stairs, double door
WC: Window to rear, storage cupboard
Integral Double Garage: Two windows to side, up-and-over door
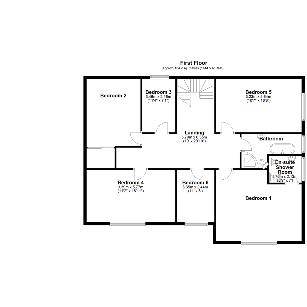
First Floor Accommodation:
Bedroom 1 (En-suite): 4.62m x 5.44m – window to front
Bedroom 2: 5.41m x 3.51m – storage cupboard, sliding door
Bedroom 3: 3.46m x 2.16m – window to rear
Bedroom 4: 3.39m x 5.77m – window to front
Bedroom 5: 3.23m x 5.64m – window to side
Bedroom 6: 3.35m x 2.44m – window to front
Family Bathroom: Window to side
Landing
Three reception rooms offer versatile living and entertaining space, while six bedrooms provide generous family accommodation. Formal gardens and paddocks extend to approximately 3.107 acres (sts), complemented by timber outbuildings and an integral double garage.
Hydra is located approximately one mile from the A16 and the village of Stickney, offering excellent access to local amenities, including a highly regarded secondary school, an Ofsted ‘Good’ rated primary school, and a modern doctors’ surgery and primary care unit.
The Development Opportunity
To the rear of Hydra lies a significant additional asset: fully consented residential development land. Planning permission has been granted under Class Q for:
Conversion of three agricultural buildings into seven residential dwellings
Demolition of one redundant barn
Total approved floorspace: 776.9 sq m (8,363 sq ft)
The consented scheme allows for a courtyard-style development with established vehicular access from Midville Lane. The site offers excellent potential for phased delivery, investment, or resale, and represents a rare opportunity to acquire a substantial property with both immediate occupation and long-term development potential.
Accompanying documentation, including approved plans and Flood Risk Assessment, is available upon request.
Key Features
House
Substantial six-bedroom detached home
Nearly 3,000 sq ft of accommodation
Three reception rooms, study, kitchen, utility, cloakroom
Freshly decorated throughout with new carpets
Modern family bathroom and en-suite
Clearview multi-fuel stove
Integral double garage
Formal gardens and paddocks (approx. 3.107 acres sts)
Timber outbuildings
Development
Fully consented Class Q development
Conversion of three barns to seven dwellings
Demolition of one redundant building
Total approved floorspace: 776.9 sq m
Established access from Midville Lane
Peaceful rural setting with open views
The Planning permission
Fully Consented Residential Development Opportunity
Agricultural Buildings, Midville Lane, PE22 8DW
Summary
A rare opportunity to acquire a fully consented residential conversion scheme for the development of seven dwellings within a rural Lincolnshire setting.
Planning permission has been granted for the conversion of three former agricultural buildings and demolition of one redundant barn to create a well-designed residential scheme extending to approximately:
776.9 sqm (8,363 sq ft) GIA
The site offers a low-risk, implementable development opportunity with clear planning status and established access.
Location
The site is located to the rear of Hydra, Midville Lane, PE22 8DW, within open countryside in Lincolnshire. The area is characterised by agricultural land and dispersed residential dwellings, providing an attractive rural living environment.
Vehicular access is available directly from Midville Lane via the existing access point.
Planning
Full Prior Approval has been granted under Class Q for:
Conversion of three agricultural buildings
Demolition of one agricultural building
Creation of 7 residential dwellings
Associated operational development reasonably necessary for conversion
Planning Highlights
7 units consented
No unit exceeds 150 sqm
Total consented floorspace: 776.9 sqm
No previous Class Q development on the holding
Existing highway access confirmed
Flood Risk Assessment completed
Majority of site within Flood Zone 1
Full decision notice, approved drawings and supporting reports are available within the data pack.
The Site
The site comprises a cluster of redundant former piggery buildings positioned behind the existing dwelling known as Hydra.
The consented scheme retains and converts three buildings to create a courtyard-style development, with one structure approved for demolition.
The buildings are structurally substantial agricultural units, suitable for conversion in accordance with the approved plans.
Access & Parking
Established vehicular access from Midville Lane
On-site parking and turning areas approved within each dwelling curtilage
No identified highway safety concerns
Flood Risk
A Flood Risk Assessment prepared by Evans Rivers and Coastal confirms:
Predominantly Flood Zone 1 location
Low fluvial flood risk
Safe access and egress during flood events
Existing floor levels above surrounding ground levels
Development Overview
ItemDetail
Planning StatusPermission Granted
Units7 dwellings
Total GIA776.9 sqm
Maximum Unit Size<150 sqm
Previous Class QNone
TenanciesNone
AccessExisting access
Opportunity
This is an ideal opportunity for:
SME developers seeking a consented rural scheme
Regional housebuilders
Investors seeking implementable planning
Developers specialising in barn conversions
The planning consent significantly reduces development risk and provides a clear route to delivery.
These particulars are intended to give a fair and accurate description of the property to the best of the agent’s knowledge at the time of marketing. They do not constitute part of an offer or contract.
Some properties may be subject to additional charges such as estate management charges, rentcharges, service charges, or other ongoing costs relating to communal areas or shared infrastructure. Prospective purchasers are advised to make their own enquiries and seek confirmation of all details, including tenure and any associated charges, via their solicitor prior to exchange of contracts.







































