Property Features
Eider Grove, Spalding, PE11 3WD
Contact Agent
Spalding Office43, Double Street
Spalding
Lincolnshire
PE11 2AA
Tel: 01775 713 888
enquiries@sedge-homes.com
About the Property
CHAIN FREE
An immaculately presented three-bedroom semi-detached home, completely redecorated to a high standard and located on the popular Kier development in Woolram Wygate. Featuring high-quality finishes throughout, a modern layout and a larger-than-average rear garden, this stylish property is ideal for modern family living.
- CHAIN FREE
- Completely redecorated to a high standard
- High-quality tiled flooring to the ground floor
- Brand new contemporary front and rear composite doors
- Spacious lounge with French doors to the garden
- Modern kitchen/diner with integrated appliances
- Utility room and ground floor cloakroom
- En suite shower room to master bedroom
- Larger-than-average enclosed rear garden
- Off-road parking for two vehicles and single garage
Property Details
Summary
Sedge Estate Agents are delighted to offer for sale this immaculately presented three-bedroom semi-detached home, situated on the popular Kier development in Woolram Wygate. The property has been completely redecorated to a high standard and features high-quality tiled flooring along with brand new contemporary composite front and rear doors, creating a modern and stylish finish throughout.
The accommodation comprises a welcoming entrance hall with cloakroom, a bright double-aspect lounge with French doors opening onto the rear garden, and a modern kitchen/diner with integrated appliances and adjoining utility room. Upstairs offers three well-proportioned bedrooms, including a master bedroom with en suite shower room, together with a contemporary family bathroom. Externally, the property benefits from off-road parking for two vehicles leading to a single garage and a larger-than-average, fully enclosed rear garden with patio seating area. Ideally located close to local amenities, schools and transport links, this exceptional home is presented in immaculate order and viewing is highly recommended.
Accommodation
Entrance Hall
Entered via a newly fitted composite double-glazed front door, the entrance hall provides a welcoming first impression. Featuring high-quality tiled flooring, staircase rising to the first floor, radiator, power points, telephone point and thermostat control.
Cloakroom
Comprising a low-level WC and pedestal wash hand basin with mixer tap and tiled splashback. Finished with tiled flooring, radiator, extractor fan and a smooth skimmed ceiling.
Kitchen/Diner
A modern, double-aspect kitchen/diner fitted with a range of high-gloss base and eye-level units with rolled-edge work surfaces. Incorporating an inset sink and drainer with mixer tap, integrated fridge and freezer, dishwasher, four-burner gas hob with glass splashback and extractor hood, along with an integrated electric double oven and grill. Finished with tiled flooring, inset spotlights, power points, TV point and fuse box. An internal door leads to the utility room.
Utility Room
Fitted with matching high-gloss units and work surface incorporating an inset sink and drainer with mixer tap. Integrated washer/dryer, cupboard housing the wall-mounted gas boiler, radiator, power points, extractor fan and inset spotlights. A newly fitted composite rear door provides access to the garden.
Lounge
A bright and spacious double-aspect lounge featuring a UPVC double-glazed window to the front and French doors opening onto the rear garden. Finished with tiled flooring, radiator, power points, multiple TV points, telephone point and smooth skimmed ceiling.
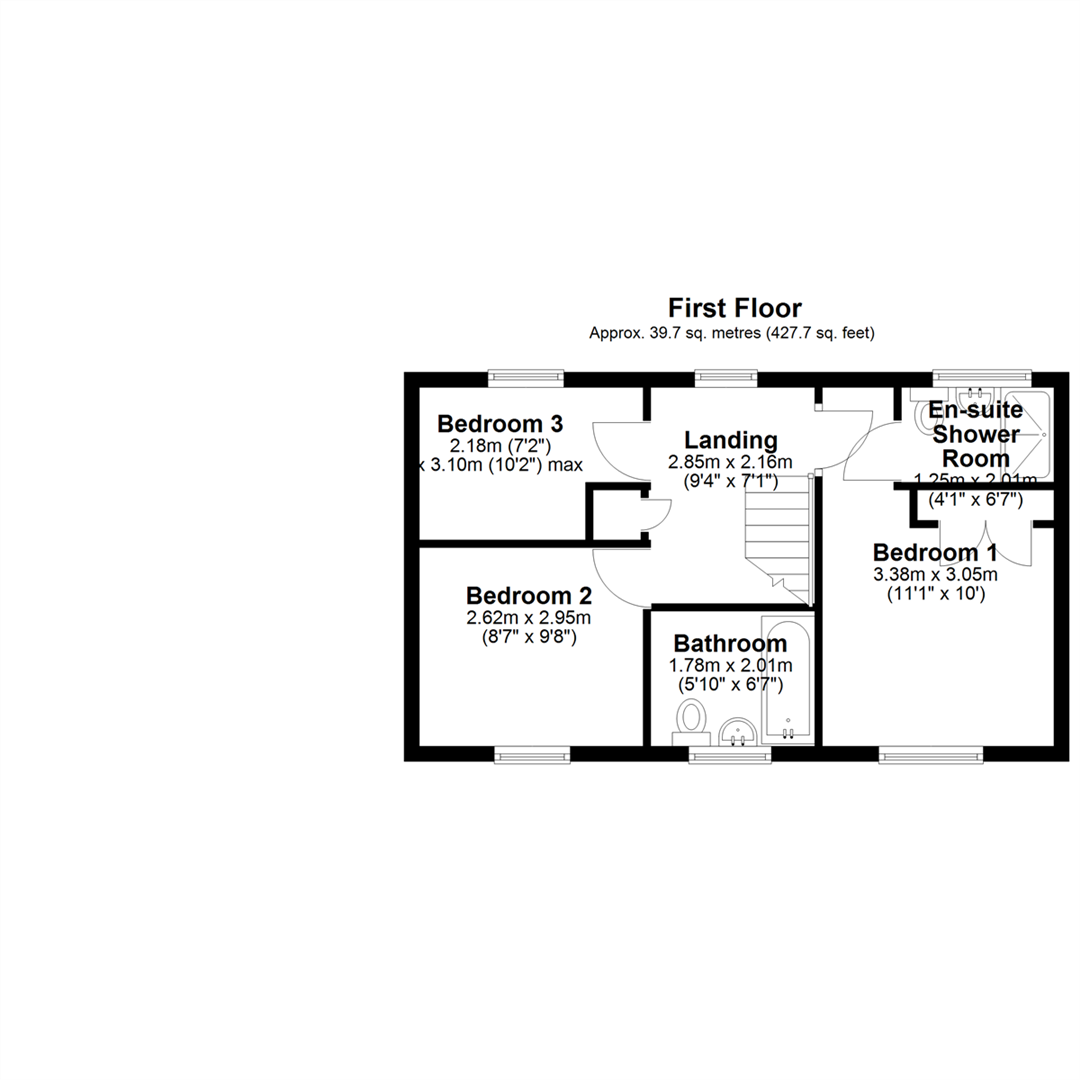
Landing
With UPVC double-glazed window to the rear, radiator, power points, loft access hatch and airing cupboard with shelving. Smooth skimmed ceiling.
Master Bedroom
A generously sized double bedroom with UPVC double-glazed window to the front. Featuring radiator, power points, TV point, built-in wardrobe with hanging rail and shelving, and smooth skimmed ceiling.
En Suite Shower Room
Comprising a tiled double shower cubicle with built-in mixer shower, low-level WC and pedestal wash hand basin with mixer tap and tiled splashback. Finished with tiled flooring, wall-mounted heated towel rail, shaver point, extractor fan and inset spotlights. Obscured UPVC double-glazed window to the rear.
Bedroom Two
A well-proportioned bedroom with UPVC double-glazed window to the front, radiator, power points and smooth skimmed ceiling.
Bedroom Three
UPVC double-glazed window to the rear, radiator, power points, telephone point and smooth skimmed ceiling—ideal as a child’s bedroom, guest room or home office.
Family Bathroom
A contemporary three-piece suite comprising a panelled bath with mixer tap and hand-held shower attachment, low-level WC and pedestal wash hand basin with mixer tap. Finished with tiled flooring and splashbacks, wall-mounted heated towel rail, shaver point, extractor fan and inset spotlights. Obscured UPVC double-glazed window to the front.
Outside
Front
The front of the property is mainly laid to lawn with a low-level shrub border. A paved ramp-style pathway leads to the front entrance door, with storm porch and courtesy light.
Garage & Parking
Tarmac driveway providing off-road parking for two vehicles leading to a single garage measuring approximately 17'2" x 8'8", fitted with a metal up-and-over door, power and lighting.
Rear Garden
A larger-than-average, fully enclosed rear garden, predominantly laid to lawn with an extended patio seating area across the rear of the property. Additional gravelled seating area behind the garage, outside lighting and external tap. Fully enclosed by panel fencing and accessed via a gated side entrance.
Council Tax Band: B
Energy Efficiency Rating: B
Viewing is Highly Recommended to Fully Appreciate the Standard, Space and Presentation of This Immaculate Modern Family Home.
These particulars are intended to give a fair and accurate description of the property to the best of the agent’s knowledge at the time of marketing. They do not constitute part of an offer or contract.
Some properties may be subject to additional charges such as estate management charges, rentcharges, service charges, or other ongoing costs relating to communal areas or shared infrastructure. Prospective purchasers are advised to make their own enquiries and seek confirmation of all details, including tenure and any associated charges, via their solicitor prior to exchange of contracts.















