Property Features
Church Street, Pinchbeck, Spalding, Lincolnshire, PE11 3UA
Contact Agent
Spalding Office43, Double Street
Spalding
Lincolnshire
PE11 2AA
Tel: 01775 713 888
enquiries@sedge-homes.com
About the Property
This immaculately presented three-bedroom detached home in the sought-after village of Pinchbeck offers spacious and versatile living throughout, making it an ideal family home. With multiple reception rooms, a well-appointed kitchen/breakfast room with integrated Neff dishwasher, conservatory, utility space, and a ground floor shower room, the property is designed for practical modern living. Externally, it benefits from ample off-road parking, a garage, and a generous enclosed rear garden—perfect for families and entertaining.
- Three bedroom detached family home
- Sought-after village location in Pinchbeck
- Spacious kitchen/breakfast room (11'9 x 12'3)
- Separate dining room (12'10 x 10'8) and living room (11'6 x 13'0)
- Conservatory overlooking the rear garden
- Utility room and ground floor shower room
- Two double bedrooms with fitted wardrobes
- Generous third bedroom ideal as office or nursery
- Ample off-road parking with large gravel driveway and garage
- Large enclosed rear garden with patio and mature trees
Property Details
Summary
Well-Presented Three Bedroom Detached Family Home in Sought-After Pinchbeck
Sedge Estate Agents are delighted to bring to the market this immaculately presented three-bedroom detached property, ideally positioned in the highly desirable village of Pinchbeck. Offering spacious and versatile accommodation throughout, ample off-road parking, a garage, and a generous rear garden, this superb home is perfectly suited to family living.
Conveniently located close to a wide range of local amenities including shops, pubs, and a post office, this property combines village convenience with comfortable modern living.
Accommodation
Porch
Upvc part glazed door to front aspect leading into the entrance hallway.
Entrance Hallway
Upvc window to side aspect. Stairs leading to the first floor landing. Tiled flooring. Radiator.
Kitchen/Breakfast Room - 11'9 x 12'3
A bright and well-appointed kitchen fitted with two Upvc windows and a door to the side aspect, along with French doors opening into the conservatory, creating a lovely flow of natural light. Comprising a range of base and wall units with work surface over, ceramic sink and drainer with mixer tap, integrated oven and grill, and a featured inset gas hob with extractor hood over. Finished with part-glazed tiled splashbacks, tiled flooring, and a radiator. A fantastic space for everyday family dining and entertaining.
Dining Room - 12'10 x 10'8
A versatile reception room with two Upvc windows to the side and rear aspect and a Upvc door with side panels leading to the rear garden. Radiator. Carpeted. A great space for formal dining or additional family living.
Living Room - 11'6 x 13'0
A comfortable and well-proportioned main reception room featuring a Upvc bay window to the front aspect and two additional Upvc windows to the side aspect, allowing plenty of natural light. Attractive fireplace with surround creates a focal point to the room. Radiator. Carpet. Television point. A perfect space to relax and unwind.
Utility Room - 6'7 x 7'7
Practical and highly useful space with wall and base units and worksurface over. Stainless steel sink with mixer tap. Space and plumbing for washing machine and tumble dryer, plus space for fridge freezer. Tiled flooring. Water softener. Door to front aspect providing convenient external access.
Shower Room
Upvc window to side aspect. Wash hand basin, shower cubicle, and toilet. Fully tiled walls and tiled flooring. A useful and convenient ground floor facility.
Conservatory
Upvc constructed conservatory with polycarbonate roof. Upvc door leading to rear garden and Upvc windows to front, side, and rear aspects, flooding the space with light. Wall mounted heater and tiled flooring. A superb additional living space overlooking the garden.
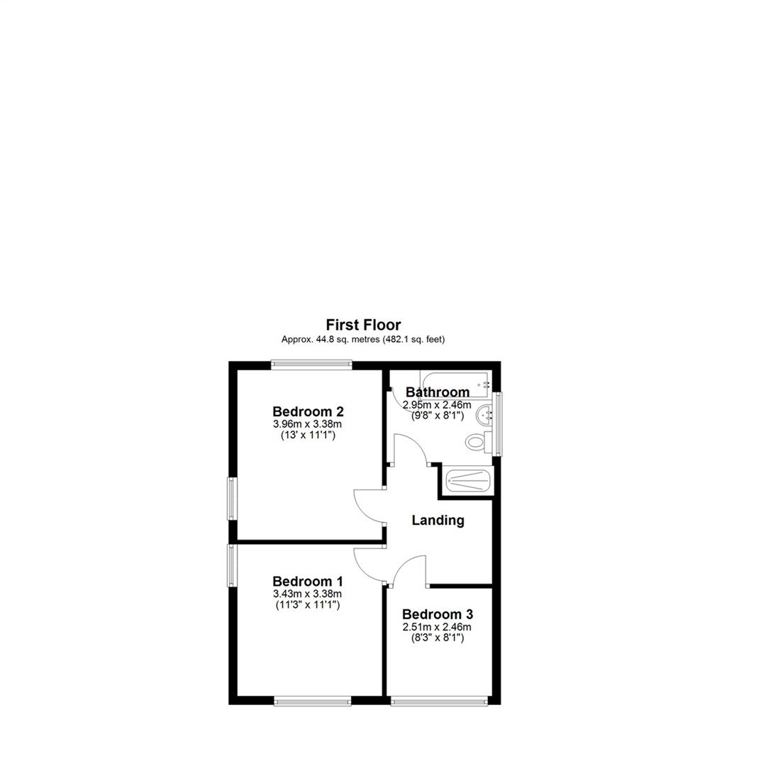
Landing
Upvc window to side elevation. Carpeted. Loft access.
Bedroom One - 12'3 x 8'5
A well-presented double bedroom with Upvc windows to the side and rear elevation. Built-in wardrobes. Radiator. Carpeted. A comfortable and peaceful principal bedroom.
Bedroom Two - 12'4 x 10'8
A generous double bedroom with Upvc window to front and side elevation. Fitted wardrobes provide excellent storage. Carpeted. Radiator.
Bedroom Three - 7'9 x 8'11
A well-proportioned third bedroom with Upvc window to front elevation. Fitted wardrobes. Radiator. Carpeted. Ideal as a child’s bedroom, guest room, or home office.
Bathroom
Upvc window to side elevation. Comprising bath, wash hand basin, double shower cubicle, and toilet. Fully tiled walls. Radiator. A spacious and well-finished family bathroom.
Outside
Front
A large gravelled driveway provides ample off-road parking for multiple vehicles, along with access to the garage. The frontage is complemented by mature hedging and a half brick wall, giving the property an attractive and established appearance.
Garage
Up and over door to the front. Door to side aspect leading into the rear garden, offering excellent convenience and additional access.
Rear Garden
A fully enclosed and generously sized rear garden, mainly laid to lawn with mature trees providing privacy and character. A paved patio seating area sits directly outside the property, ideal for outdoor dining and entertaining. A stepping stone pathway leads through the garden, making this a lovely and usable outdoor space for families.
These particulars are intended to give a fair and accurate description of the property to the best of the agent’s knowledge at the time of marketing. They do not constitute part of an offer or contract.
Some properties may be subject to additional charges such as estate management charges, rentcharges, service charges, or other ongoing costs relating to communal areas or shared infrastructure. Prospective purchasers are advised to make their own enquiries and seek confirmation of all details, including tenure and any associated charges, via their solicitor prior to exchange of contracts.























